MSA Stage 5
Bourdon Building, 32 students
This programme is ARB/RIBA Part 2 Accredited. The programme is designed to provide the necessary educational framework for students who intend to enter the architectural profession, and confers exemption from Part 2 of the Examination in Architecture ARB/RIBA. It offers and intensive training in the forces acting on building, and the specific skills of being an architect. Project based it centres on contemporary issues of urban building, the work ranging from live projects and sponsored research to competitions and theoretical studies.
This year’s Stage 5 students have responded to the theme of The Ethical City, with many students this year taking as their case study the city of Porto. Community empowerment is a key theme that many students have drawn on when looking at ethical methods of revitalising urban spaces, along with sustainable and restorative building practices and conscientious approaches to material.


from Urban Refuge: A Hospitable Street

from Urban Refuge: A Hospitable Street

from Urban Refuge: A Hospitable Street

from Urban Refuge: A Hospitable Street

from Urban Refuge: A Hospitable Street


from Re-imagining Urban Resilience

from Re-imagining Urban Resilience

from Re-imagining Urban Resilience

from Re-imagining Urban Resilience

from Re-imagining Urban Resilience


from Bridge at the Confluence

from Bridge at the Confluence

from Bridge at the Confluence

from Bridge at the Confluence

from Bridge at the Confluence


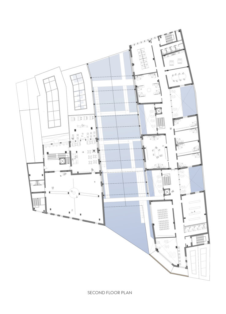
from Museum of Migration and Exploration

from Museum of Migration and Exploration

from Museum of Migration and Exploration

from Museum of Migration and Exploration

from Museum of Migration and Exploration



from Facade Exspression

from Insect Study

from Living Wall Breakdown

from Sections

from Living Wall Breakdown


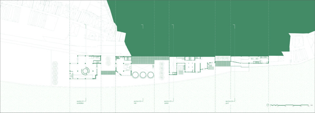
from the City as a Stage

from the City as a Stage

from the City as a Stage

from the City as a Stage

from the City as a Stage







from O Parque Dos Mortos

from O Parque Dos Mortos

from O Parque Dos Mortos

from O Parque Dos Mortos

from O Parque Dos Mortos



from Letting the Water In

from Letting the Water In

from Letting the Water In

from Letting the Water In

from Letting the Water In


from In Conversation w/ Álvaro Siza

from The Public Conglomerate

from The Public Conglomerate

from In Conversation w/ Álvaro Siza

from The Public Conglomerate


from Journal

from Poetic Rupture

from Poetic Rupture

from Journal

from Poetic Rupture


from Crafted Descent

from Crafted Descent

from Crafted Descent

from Crafted Descent

from Crafted Descent


from SERENO LIVING

from SERENO LIVING

from SERENO LIVING

from SERENO LIVING

from SERENO LIVING


from Beyond Commercial Developments

from Beyond Commercial Developments

from Time in Oslo Semester 1 Exchange – Headquarters

from Beyond Commercial Developments

from Time in Oslo Semester 1 Exchange – Headquarters


from Respira Besòs

from Respira Besòs

from Respira Besòs

from Respira Besòs

from Educación Y Territorio


from ”Mending Porto In Pattern”

from ”Mending Porto In Pattern”

from ”Mending Porto In Pattern”

from ”Mending Porto In Pattern”

from ”Mending Porto In Pattern”


from Revowen Melodies


from Reinterpretation of walls – Monastery library / Refectory library in Porto

from Reinterpretation of walls – Monastery library / Refectory library in Porto

from Reinterpretation of walls – Monastery library / Refectory library in Porto


from Survival Manual

from Survival Manual

from Survival Manual

from Survival Manual

from Survival Manual


from The Scene and Unseen – Proposal

from The Scene and Unseen – Proposal

from The Scene and Unseen – Proposal

from The Scene and Unseen – Research

from The Scene and Unseen – Proposal


from From Courthouse to Funhouse

from From Courthouse to Funhouse

from From Courthouse to Funhouse

from From Courthouse to Funhouse

from From Courthouse to Funhouse


from Urban Dialectic

from Urban Dialectic

from Urban Dialectic

from Urban Dialectic

from Urban Dialectic


from Commoning the City

from Commoning the City

from Commoning the City

from Commoning the City

from Commoning the City



from Énergie en Friche





from Reaching Through the Threshold

from RE-MINE

from RE-MINE

from RE-MINE

from RE-MINE


from It Takes A Village

from It Takes A Village

from It Takes A Village

from It Takes A Village

from It Takes A Village



from Overview

from Overarching Themes

from Overarching Themes

from Collective Power

from Precessional Development

from Beyond the Moongate 月门之外

from Beyond the Moongate 月门之外

from Beyond the Moongate 月门之外

from Beyond the Moongate 月门之外


from Renders

from TEATRO DA VIDA ‘City as a Stage, Architecture as an event’

from TEATRO DA VIDA ‘City as a Stage, Architecture as an event’

from Research Themes

from Research Themes